appartement émile zola
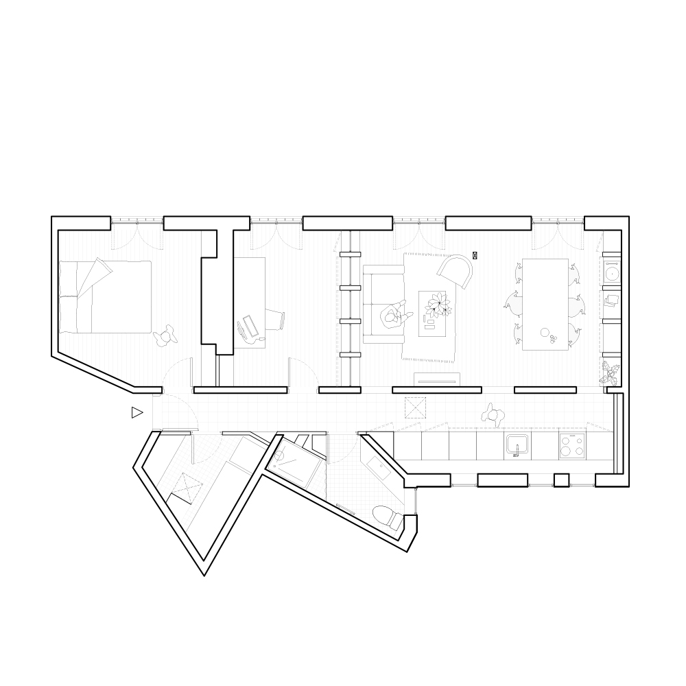
programme : Création d’un appartement de trois pièces par la réunification de deux studios, une circulation et deux buanderies.
situation : Paris 15ème
maitrise d'ouvrage : client privé
maitrise d’œuvre : minuit
surface : 61m²
coût travaux : 75 k€
statut : livraison 2021
crédits photographiques : adeline care
L’appartement était autrefois composé de nombreuses petits espaces situés sous les toits d’un immeuble haussmannien : deux studios, deux buanderies et le tronçon de couloir qui les desservait.
Il devient fluide et traversant, offre des vues transversales et bénéficie d’un ensoleillement généreux, à travers les nombreuses fenêtres et vasistas.
L’axe distributif, paré de rouge et prolongé par le miroir en bout de perspective, s’élargit pour accueillir une cuisine toute en longueur.
Il devient fluide et traversant, offre des vues transversales et bénéficie d’un ensoleillement généreux, à travers les nombreuses fenêtres et vasistas.
L’axe distributif, paré de rouge et prolongé par le miroir en bout de perspective, s’élargit pour accueillir une cuisine toute en longueur.